< back to Wedding Restrooms

Call or Text 1-802-242-2222
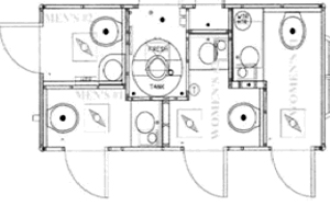
Specifications:
WASTE TANK: 440 gallons
GUESTS: Up to 175 (6-8 hours)
FRESH TANK: 200 gallons
NUMBER STATIONS: 4
WINTER PACKAGE
SIZE: 11’6” (H) X 14′ (L) (19’ including tongue) x 8’ 6” (W) before stairs, 9.6” with stairs down
FEATURES
➛ 2 Women’s private rooms, entrances & sinks
➛ 1 Men’s private room, entrance & sink
➛ 1 Unisex private room, entrance & sink
➛ A/C, Heat, Hot Water
➛ Upgraded Interior/ Exterior Lights
➛ Custom Trim and Floors
➛ Winterization Package,
➛ Surround Sound
➛ 200-Gallon Fresh Water System
➛ 440-Gallon Waste Water Tank
➛ Two (2) 20 AMP Circuits Required
➛ Garden Hose Connection or Freshwater Tank
➛ Stocked Foaming Hand Soap, Paper Towels, Toilet Paper
➛ Generator, Water & Attendant Available
➛ Daily, Weekend, Weekly & Monthly Rates
4x4 Station Restroom Trailer (Gray Spa) FLYER

A One World Environmental Company
63 Shields Drive
Bennington, VT 05201
Call or Text 1-802-242-2222
sales@802restrooms.com
Offering clean, reliable, and affordable portable sanitation services throughout New England and Upstate New York, 802 RESTROOMS is the luxury restroom trailer and portable toilet rental company you can depend on. Whether you need New England’s most luxurious restroom trailer for your wedding or 200 portable toilets for your area’s largest events, we deliver the quality you expect and the professional service you deserve.